
Funderplan
Funderplan – 100% Naturprodukt zum Wohlfühlen
Funderplan – die ökologische, baubiologische und gesunde Alternative im Holzbau
Das Thema des nachhaltigen Bauens mit biogenen Baustoffen rückt immer weiter in den Vordergrund.
Nachhaltigkeit und das komplexe Zusammenspiel von Gestaltung und ökologischer Ressourcennutzung
zur Planung von Lebensräumen verlangen nach gesunden Werkstoffen. Speziell für ein gesundes Wohnumfeld mit einem optimalen Raumklima wurde die Funderplan-Biofaserplatte entwickelt.
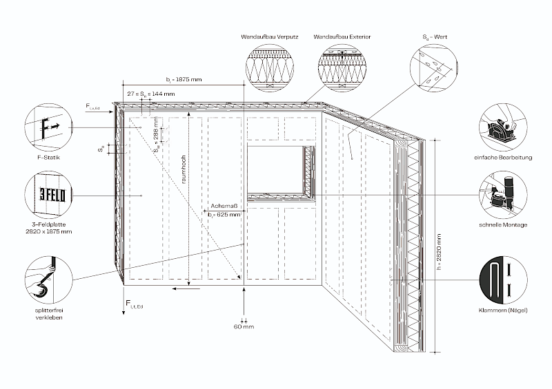
Unsere hochdichte Holzfaserplatte Funderplan wird in unserem speziellen Herstellungsverfahren aus
frischem Faserholz aus zertifizierter nachhaltiger Forstwirtschaft mit Einsatz von erzeugter, erneuerbarer
Energie ohne künstliche Klebstoffe hergestellt. Gegenüber herkömmlichen Holzwerkstoffen, die mit erdölbasierenden Leimen produziert werden, aktivieren wir die in den Holzfasern enthaltenen Naturharze und schaffen so ein unverfälschtes Naturprodukt. Das macht unsere Funderplan so einzigartig.
Somit schafft Funderplan außerordentlich gute Lebensraumqualität und wirkt sich damit positiv auf
Behaglichkeit sowie Hygiene und auf die Gesundheit von Bewohnern und Nutzern aus. Das Raumklima wird zum Erlebnis. Funderplan gewährleistet nachweislich ein Leben, Wohnen und Arbeiten
ohne Belastung durch unnatürliche Emissionen und das auch bei Projekten für Kinder und ältere oder
gesundheitlich besonders sensible Menschen. Es entstehen dabei Räume, in denen man mit gutem
Gewissen wohnen und frische Energie tanken kann.
